73 Anderson RoadGardiner, NY 12525




Mortgage Calculator
Monthly Payment (Est.)
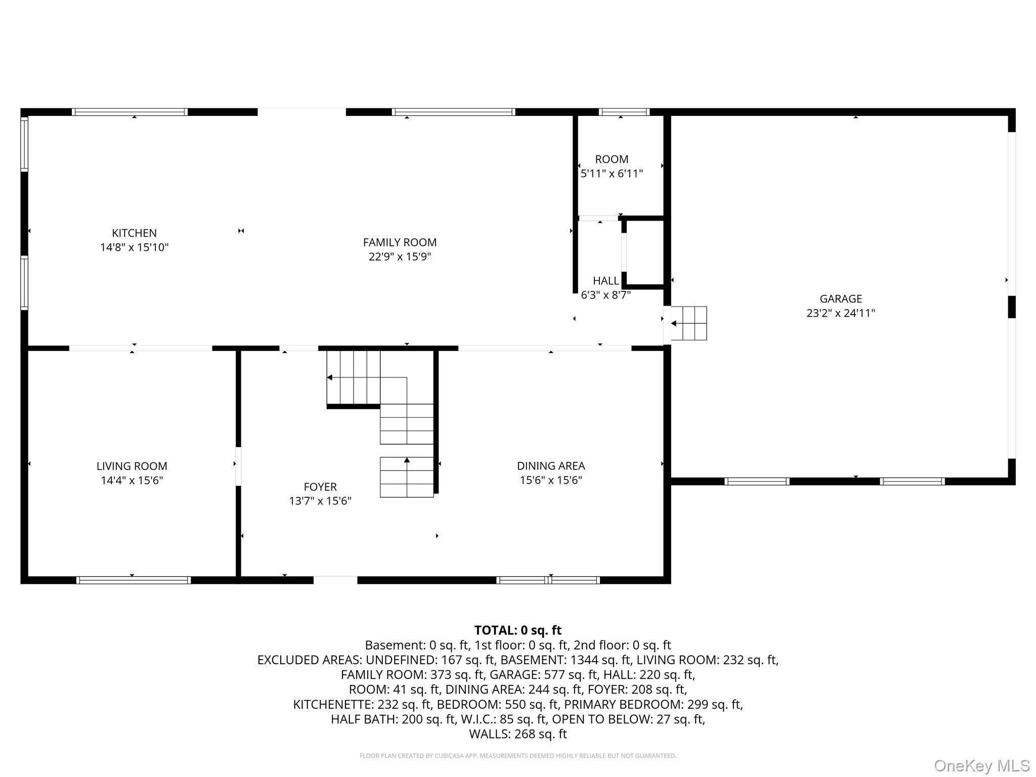
$4,330Custom Living Awaits on 3 Private Acres! Discover the perfect blend of modern luxury and country serenity in this stunning 4-bedroom, 2.5-bathroom Colonial currently under construction. Nestled on a sprawling 3-acre lot in the scenic border of Gardiner and Plattekill, this home offers the rare opportunity to step into a new build and cross the finish line with your own personal style. While the exterior is nearly complete the interior is a blank canvas awaiting your vision. Because the interior is still being finished, the builder is offering the unique opportunity for buyers to select custom Paint Colors throughout the home, choose your cabinetry, countertops, and finishes to create your dream culinary space. Personalize the primary suite and guest baths with your choice of vanities and tile. Location is everything! You are perfectly positioned to enjoy the world-class recreation and culture of the areas minutes from Mohonk Preserve and Minnewaska State Park for hiking, climbing, and biking. Explore nearby orchards, farm stands, and the famous wineries of the Shawangunk Wine Trail. Enjoy the quiet "town and country" feel of Gardiner while being just a short drive to the vibrant shops and dining in New Paltz. Bring your finishing touches to this masterpiece and start 2026 in a home that is truly yours from the inside out!
| 3 hours ago | Listing first seen on site | |
| 3 hours ago | Listing updated with changes from the MLS® |
Based on information submitted to the MLS GRID as of 2026-04-20 09:23 PM EDT. All data is obtained from various sources and may not have been verified by broker or MLS GRID. Supplied Open House Information is subject to change without notice. All information should be independently reviewed and verified for accuracy. Properties may or may not be listed by the office/agent presenting the information.