Lots 3 Sun Valley Dr.North Salem, NY 10560




Mortgage Calculator
Monthly Payment (Est.)
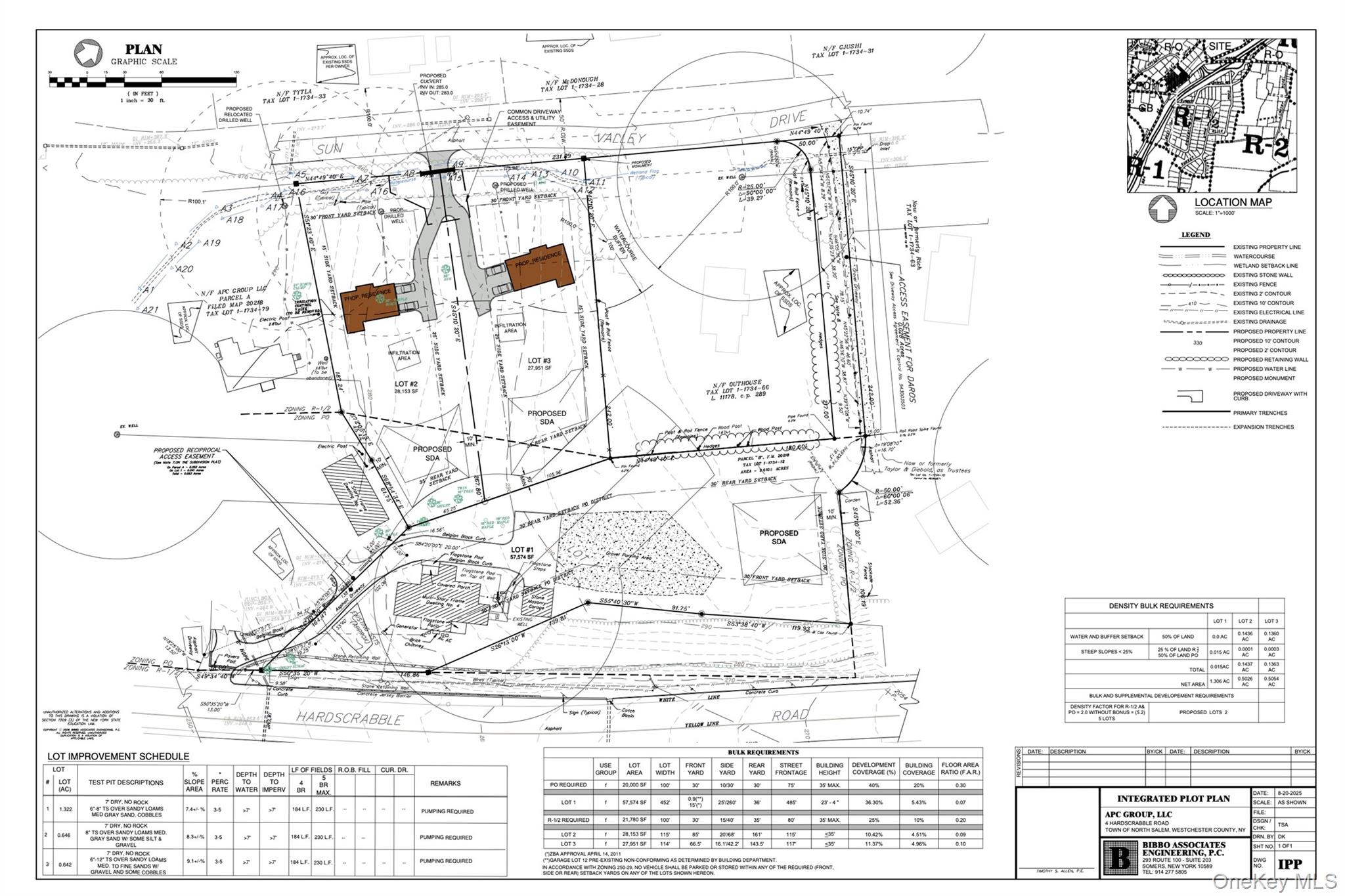
$1,939Discover a rare opportunity to build your dream home in the heart of North Salem. This level building Lot 3 is .64 acres offering a seamless path to construction. Perfectly situated for both privacy and convenience, the property provides an ideal setting for thoughtfully designed residences with ample space for outdoor living, and gardens. Enjoy the ease of a ready-to-build site without the delays of approvals. Located just minutes from I-684 and nearby train access, commuting is effortless while still embracing the tranquility and charm of country living. Set within the highly regarded North Salem school district, this is an exceptional opportunity to create a home tailored to your lifestyle in a sought-after location. A rare blend of readiness, location, and potential.
| 3 days ago | Status changed to Active | |
| 3 days ago | Listing updated with changes from the MLS® | |
| 4 days ago | Listing first seen on site |
Based on information submitted to the MLS GRID as of 2026-04-11 04:52 AM EDT. All data is obtained from various sources and may not have been verified by broker or MLS GRID. Supplied Open House Information is subject to change without notice. All information should be independently reviewed and verified for accuracy. Properties may or may not be listed by the office/agent presenting the information.