45 Columbia AvenueThornwood, NY 10594




Mortgage Calculator
Monthly Payment (Est.)
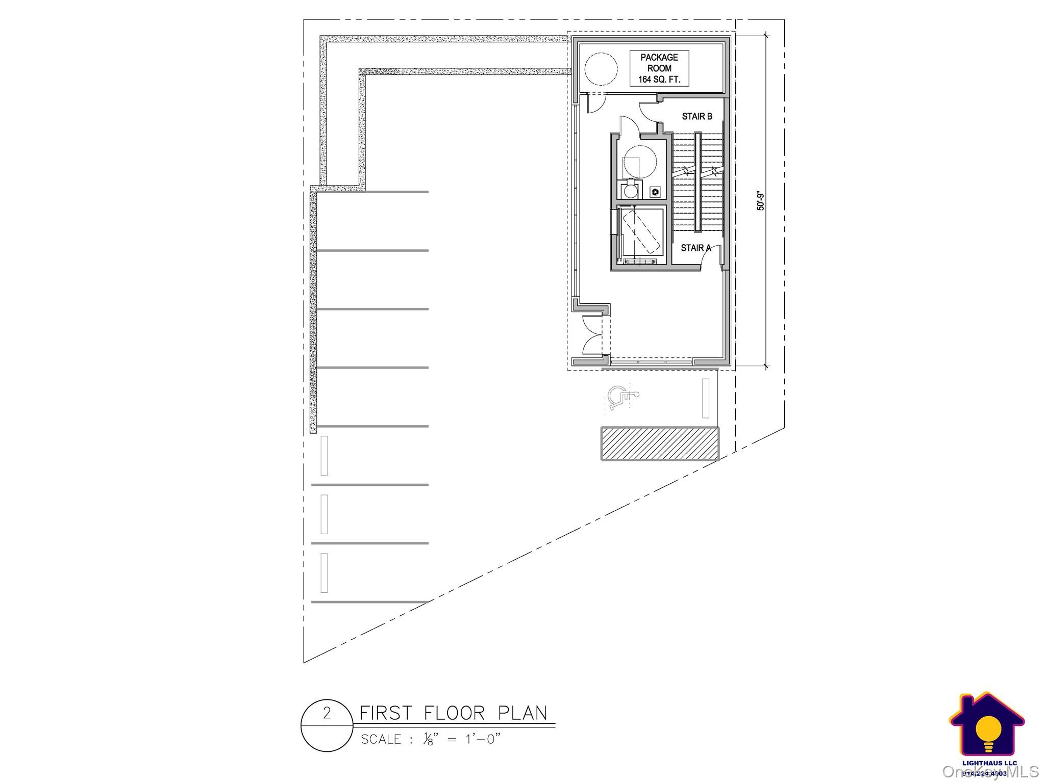
$3,308Discover your retail or office location at our transit, oriented, multi family development, opportunity! Nestled in a prime location, this exceptional property offers the epitome of convenience with its proximity to train stations, restaurants, and shopping destinations. Step into the future of urban business with this mostly empty open palate ready for your finishing touches. This building is strategically situated for easy commuting and vibrant community experiences. The possibility of street level parking next to the building provides unmatched accessibility, setting the stage for a new building that rises above a dynamic neighborhood, retail district. This unique arrangement opens up a world of possibilities, presenting a fusion of retail, or office spaces to cater to a diverse range of needs. The contemporary design of the new building to be built, harmonizes perfectly with the surrounding environment, offering a seamless blend of modern aesthetics and urban charm. With access points on two sides, the property insures the upmost privacy and independence for separate tenants enhancing the overall tenant experience. On-site parking adds to the allure and there’s even additional off street parking available making convenience a top priority. This transit oriented gem is strategically position to provide easy access to all of the amenities that modern life demands. Additional Information: HeatingFuel:Oil Above Ground,
| 3 hours ago | Listing first seen on site | |
| 3 hours ago | Listing updated with changes from the MLS® |
Based on information submitted to the MLS GRID as of 2026-04-02 08:29 PM EDT. All data is obtained from various sources and may not have been verified by broker or MLS GRID. Supplied Open House Information is subject to change without notice. All information should be independently reviewed and verified for accuracy. Properties may or may not be listed by the office/agent presenting the information.