20 Madison AvenueValhalla, NY 10595




Mortgage Calculator
Monthly Payment (Est.)
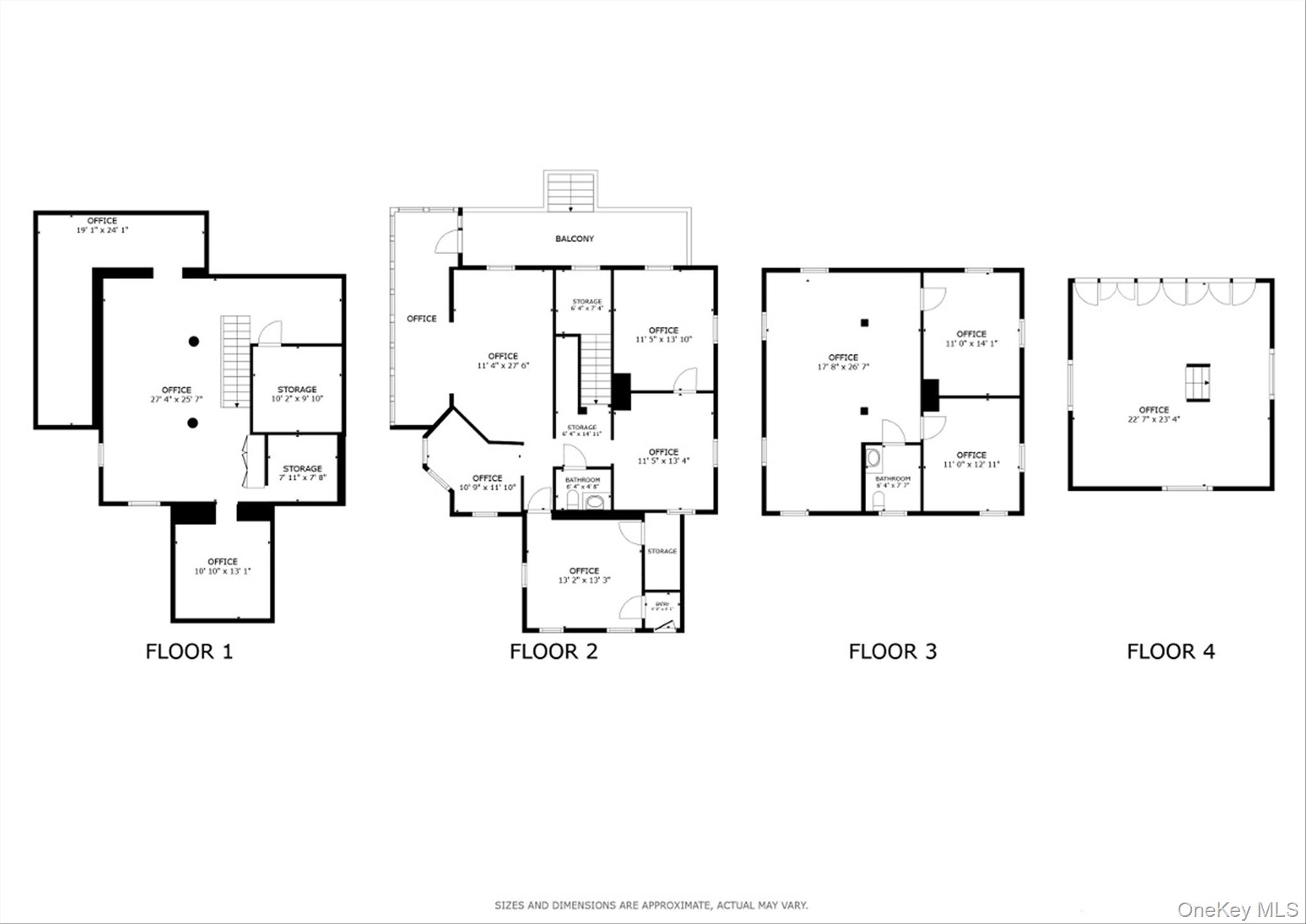
$3,536Opportunity awaits at 20 Madison Ave, a legal single-family Colonial offering over 3,300 square feet of interior space on a 0.23-acre lot in Mount Pleasant. Currently configured as office space, legal 4 bed 1 bath, this property presents a unique chance to restore and customize a residential layout to suit your vision. Currently has month to month commercial tenants on 1st & basement and another on 2nd-3rd floors. The existing layout spans multiple levels and includes numerous finished rooms, providing flexibility for reconfiguration into a traditional single-family residence with multiple bedrooms, living areas, and workspace options. A full finished basement with walk-out access adds additional usable space, while the expansive lot offers room for outdoor enjoyment, parking, or future enhancements. The property features central air, public utilities, and a driveway with an 8-car parking lot. Conveniently located near the Taconic State Pway, 2 blocks from Metro North Valhalla stop on the Harlem Line, and local amenities, the location supports a variety of residential living needs. Important: Property is being sold as-is. There is currently no Certificate of Occupancy, and the Town reports three open/expired permits. Buyer is responsible for all due diligence, permits, and any required approvals. A rare opportunity to bring new life to a property with strong fundamentals, generous space, and long-term potential.
| yesterday | Listing first seen on site | |
| yesterday | Listing updated with changes from the MLS® |
Based on information submitted to the MLS GRID as of 2026-03-30 04:59 AM EDT. All data is obtained from various sources and may not have been verified by broker or MLS GRID. Supplied Open House Information is subject to change without notice. All information should be independently reviewed and verified for accuracy. Properties may or may not be listed by the office/agent presenting the information.