Lot 13 Gail CircleRocky Point, NY 11778



Mortgage Calculator
Monthly Payment (Est.)
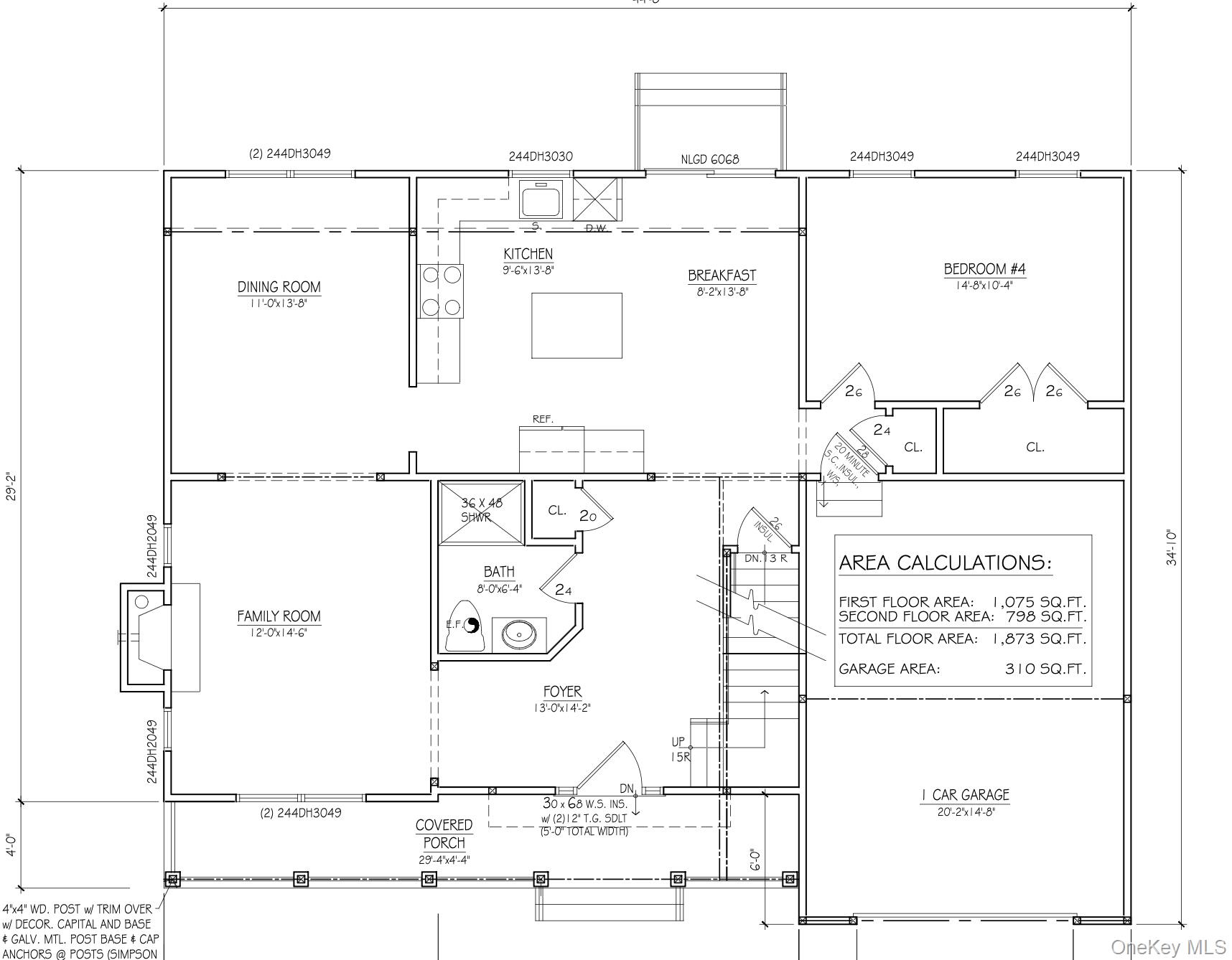
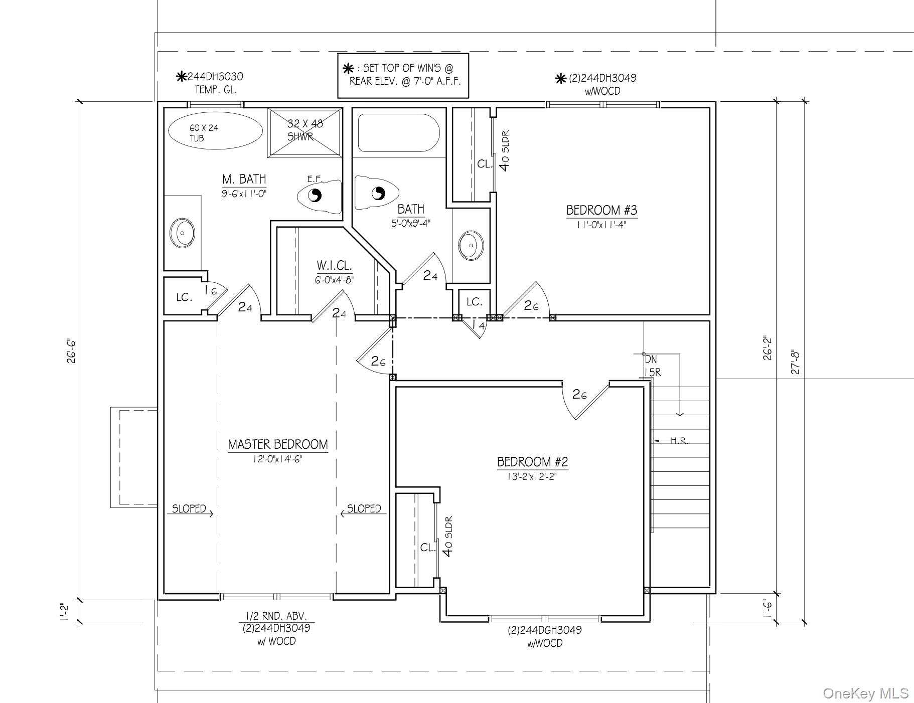
$3,650New Construction – To Be Built - The Terra Collection at The Estates at Rocky Point Welcome to The Terra Madison, an exceptional new construction colonial by Long Island’s premier builder, Terra Construction Group, located in the prestigious Estates at Rocky Point. This beautifully designed home offers approximately 1,873 square feet of thoughtfully crafted living space, featuring 4 bedrooms, 3 full bathrooms, a full basement with outside entrance, and a 1-car garage. The open and inviting floor plan showcases 9-foot ceilings on the first floor, elegant 4” red oak or 7” engineered white oak flooring, custom interior moldings, and a gas fireplace with mantel and tile surround. A formal dining room and spacious living areas create the perfect setting for entertaining and everyday living. The designer kitchen is equipped with shaker-style maple cabinetry with 42” wall cabinets, quartz countertops, ceramic tile backsplash, stainless steel sink with Kohler or Delta pull-out faucet, and a premium appliance package including a 36” refrigerator with ice and water, 30” gas range with stainless canopy hood, built-in microwave, and stainless dishwasher. The luxurious primary suite features a custom tiled shower with glass door, soaking tub, ceramic tile floors, and a custom maple vanity with granite or quartz countertop and Kohler/Delta fixtures. Additional bedrooms include plush carpeting and abundant closet space with melamine shelving systems. Built with quality and efficiency in mind, the home includes two-zone central air conditioning, two-zone water coil heating with tankless hot water system, PEX plumbing, and a full security system. Exterior features include maintenance-free vinyl siding, 30-year architectural roof shingles, vinyl double-hung windows, asphalt driveway with paver border and walkway, underground utilities, in-ground sprinkler system (up to 10 zones), and seeded lawn. The home is also solar ready for future energy efficiency. Experience the opportunity to build your dream home with Terra Construction Group, known for exceptional craftsmanship and attention to detail, in one of Rocky Point’s most exciting new communities.
| 7 hours ago | Listing first seen on site | |
| 7 hours ago | Listing updated with changes from the MLS® |
Based on information submitted to the MLS GRID as of 2026-03-06 05:34 PM EST. All data is obtained from various sources and may not have been verified by broker or MLS GRID. Supplied Open House Information is subject to change without notice. All information should be independently reviewed and verified for accuracy. Properties may or may not be listed by the office/agent presenting the information.
Did you know? You can invite friends and family to your search. They can join your search, rate and discuss listings with you.