63-14 Queens Boulevard ABCDEFGHJLWoodside, NY 11377



Mortgage Calculator
Monthly Payment (Est.)
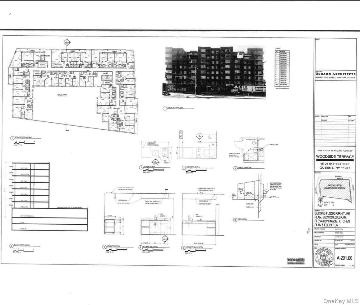
$19,162Spacious corner medical / community facility opportunity at 63-14 Queens Boulevard in the heart of Woodside. This modern, elevator building has been fully built out and operated as a college dormitory, offering a turnkey layout that can seamlessly accommodate a wide range of community facility uses, including medical offices, educational institutions, wellness or treatment centers, and professional practices. Current in-place income and additional upside. New owner to reposition or re-lease on their own terms. The floor plan features efficiently sized suites that can be combined or demised, strong natural light, modern systems, and a configuration that supports both private offices and shared common areas. Ideally located along Queens Boulevard with excellent visibility and access, the property benefits from proximity to multiple subway lines, bus routes, and major highways, connecting quickly to Manhattan and the rest of Queens. The surrounding neighborhood includes dense residential blocks, retail corridors, schools, and medical facilities, creating a deep user base for community-focused operators. This offering is well suited for investors or end users seeking stable income today with clear value-add potential through lease-up of the vacant units, programmatic upgrades, or a full repositioning while leveraging the existing dormitory-style infrastructure.
| 2 hours ago | Listing first seen on site | |
| 2 hours ago | Listing updated with changes from the MLS® |
Based on information submitted to the MLS GRID as of 2026-03-29 09:37 PM EDT. All data is obtained from various sources and may not have been verified by broker or MLS GRID. Supplied Open House Information is subject to change without notice. All information should be independently reviewed and verified for accuracy. Properties may or may not be listed by the office/agent presenting the information.