LOT A High Point CourtBrookville, NY 11545




Mortgage Calculator
Monthly Payment (Est.)
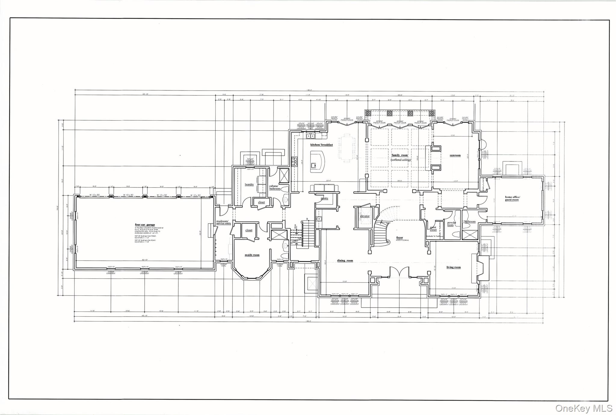
$36,043High Point Court / Parcel A – Brookville A rare opportunity to create a custom luxury estate in one of the North Shore’s most prestigious settings. Plans designed by Steven E.Homburger AIA with Gallagher Homburger Group ,Architects, PLLC. He is known for many Gold Coast Mansions designs. This private cul-de-sac parcel is offered with full architectural estate plans, allowing the buyer to build a residence of exceptional scale and elegance featuring grand entertaining rooms, first-floor guest suite, home office/library, sunroom, four-car garage, and a private primary suite wing with sitting room, terrace, and dual dressing rooms. Buyer has the flexibility to choose finishes, including kitchen style, cabinetry, flooring, millwork, tile, fixtures, and color palette. Select your appliances, lighting, and interior design direction to match traditional, transitional, or modern taste as well as Exterior Landscape design. A geotechnical evaluation has been completed, confirming no groundwater and suitability for a reinforced gunite pool, and Cabana streamlining the construction and approval process. Located in the Jericho School District, close to Brookville and Engineers Country Clubs, LIU Post, private academies, and major commuter routes. Build a home that reflects your lifestyle and vision. Full plan set and private appointment is available. Utilities are not in place at the time of this listing. Plans are in place, Option to meet builder and make plan changes..
| 3 weeks ago | Status changed to Active | |
| 3 weeks ago | Listing updated with changes from the MLS® | |
| 3 weeks ago | Listing first seen on site |
Based on information submitted to the MLS GRID as of 2025-11-30 09:31 PM EST. All data is obtained from various sources and may not have been verified by broker or MLS GRID. Supplied Open House Information is subject to change without notice. All information should be independently reviewed and verified for accuracy. Properties may or may not be listed by the office/agent presenting the information.
Did you know? You can invite friends and family to your search. They can join your search, rate and discuss listings with you.