6 Cooper RoadScarsdale, NY 10583




Mortgage Calculator
Monthly Payment (Est.)
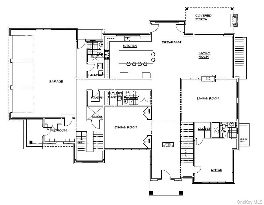
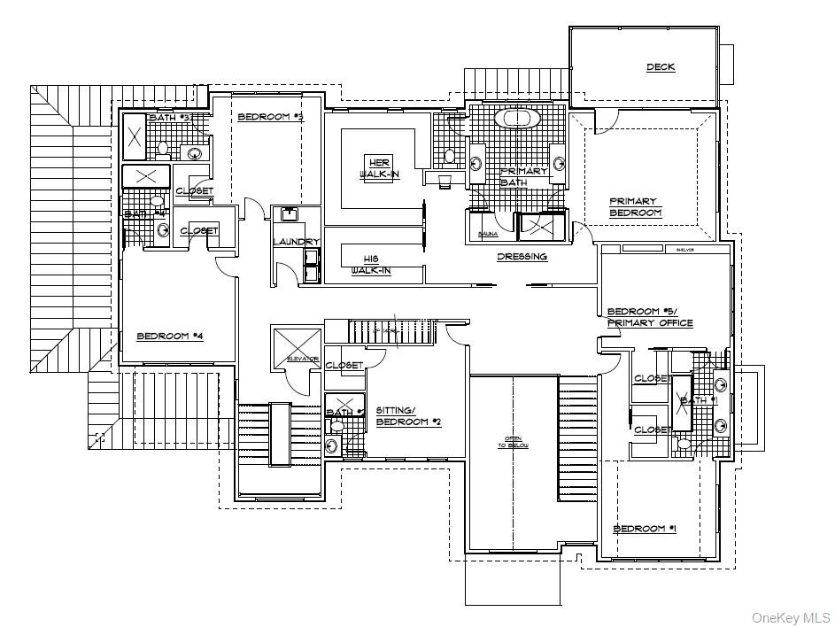
$36,476Stunning new construction by award winning custom luxury home builder, KOSL Building. Featuring a sleek modern farmhouse aesthetic with robust transitional finishes.Dramatic 2-story paneled foyer, private office/bath and glass-way wine cellar flowing into large dining room. 10’ ceilings on first fl, LRM/FMR/FPL, custom chefs’ eat-in kitchen, back staircase, laundry, full bath, elevator, and 3-car heated garage. 2nd floor offers 9’ ceilings w/ additional laundry, 5 BR, 4 BTH. Primary suite has large his/her closets, steam shower, radiant heat, sauna, and private deck overlooking lush backyard. 9’ Basement is filled with endless entertainment options such as custom theater, juice bar, full gym with sauna/yoga room and bedroom/bath. Enjoy the outdoors with a covered porch finished with heat lamps, speakers, and fireplace, 20x40 pool with spa. Custom pool house with waterfall and BBQ station as additional option. Premium level property in the Murray Hill Estate area is truly one of a kind! Additional Information: Amenities:Steam Shower,ParkingFeatures:3 Car Attached,
| 3 months ago | Listing first seen on site | |
| 3 months ago | Listing updated with changes from the MLS® |
Based on information submitted to the MLS GRID as of 2025-11-30 09:31 PM EST. All data is obtained from various sources and may not have been verified by broker or MLS GRID. Supplied Open House Information is subject to change without notice. All information should be independently reviewed and verified for accuracy. Properties may or may not be listed by the office/agent presenting the information.
Did you know? You can invite friends and family to your search. They can join your search, rate and discuss listings with you.